Beschrijving
Sfeervol en goed ingedeeld appartement met een woonoppervlakte van 41 m2 met een fijn balkon.
De Pretoriusstraat ligt in het hart van de geliefde Transvaalbuurt, in Amsterdam-Oost – een bruisende wijk waar karakter, levendigheid en groen hand in hand gaan. Deze buurt is de afgelopen jaren uitgegroeid tot een van de meest gewilde plekken van de stad, dankzij de perfecte mix van rust, gezelligheid en stedelijke voorzieningen.
In de directe omgeving vind je tal van leuke cafés, restaurants en speciaalzaken zoals Rumbaba, The Cottage, Pazzi Pizza, De Vergulde Eenhoorn, De Kas, Café Elsa’s, La Vallade of de vele horecagelegenheden aan het Beukenplein en de Javastraat. Het Oosterpark ligt op loopafstand – ideaal voor een wandeling, een picknick of een zomerse middag in de zon. Ook Park Frankendael met zijn bekende biologische markt (Pure Markt) ligt vlakbij.
Voor de dagelijkse boodschappen zijn er meerdere supermarkten en buurtwinkels op korte afstand, en wie houdt van ambachtelijke producten kan terecht bij diverse delicatessenzaken in de buurt.
De bereikbaarheid is uitstekend: station Amsterdam Muiderpoort en het Amstelstation liggen op enkele minuten lopen en er zijn meerdere tram- en buslijnen die je snel naar het centrum of andere delen van de stad brengen. Met de fiets sta je binnen tien minuten in het hart van Amsterdam.
Indeling
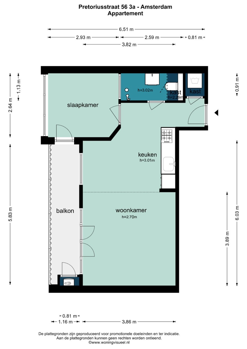
Via de entree stap je binnen in een praktische hal met toegang tot alle vertrekken. Aan de voorzijde van het appartement bevindt zich de lichte woonkamer met een open keuken voorzien van een gaskookplaat, ijskast met vriesvakje, combioven en een vaatwasser. Dankzij de grote raampartijen en de gunstige ligging is deze ruimte heerlijk licht.
Aangrenzend aan de woonkamer ligt het ruime en zonnige balkon, dat over de volledige breedte van de woning loopt.
De slaapkamer bevindt zich aan de achterzijde en biedt voldoende ruimte voor een tweepersoonsbed en een kledingkast. Vanuit de slaapkamer is er eveneens toegang tot het balkon.
Naast de slaapkamer ligt de badkamer, voorzien van een douche, toilet en wastafel. Aansluitend is er een handige bergruimte/kast, ideaal voor het opbergen van huishoudelijke spullen of het plaatsen van een wasmachine.
Bijzonderheden:
• Ca. 41 m2 woonoppervlakte (NEN2580 gemeten);
• Goed bemeten slaapkamer;
• Eigen grond;
• Breed balkon van ruim 6 m2;
• Toplocatie in een van de leukste buurten van Amsterdam Oost;
• Gezonde en actieve VVE. Maandelijkse bijdrage € 75,-.
******************************
Attractive and well-designed apartment with a living area of 41 m² and a lovely balcony.
Pretoriusstraat is located in the heart of the popular Transvaal neighbourhood in Amsterdam East, a vibrant area where character, liveliness and greenery go hand in hand. In recent years, this neighbourhood has become one of the most sought-after places in the city, thanks to its perfect mix of tranquillity, conviviality and urban amenities.
In the immediate vicinity, you will find numerous nice cafés, restaurants and specialty shops such as Rumbaba, The Cottage, Pazzi Pizza, De Vergulde Eenhoorn, De Kas, Café Elsa's, La Vallade or the many restaurants and cafés on Beukenplein and Javastraat. The Oosterpark is within walking distance – ideal for a walk, a picnic or a summer afternoon in the sun. Park Frankendael, with its famous organic market (Pure Markt), is also nearby.
For your daily shopping, there are several supermarkets and local shops within walking distance, and those who love artisanal products can visit various delicatessens in the neighbourhood.
Accessibility is excellent: Amsterdam Muiderpoort and Amstel stations are a few minutes' walk away, and there are several tram and bus lines that will quickly take you to the city centre or other parts of the city. By bicycle, you can be in the heart of Amsterdam within ten minutes.
Layout
The entrance opens onto a practical hall with access to all rooms. At the front of the apartment is the bright living room with an open kitchen equipped with a gas hob, fridge with freezer compartment, combi oven and dishwasher. Thanks to the large windows and favourable location, this space is wonderfully light.
Adjacent to the living room is the spacious and sunny balcony, which runs the entire width of the property.
The bedroom is located at the rear and offers enough space for a double bed and a wardrobe. The bedroom also has access to the balcony.
Next to the bedroom is the bathroom, equipped with a shower, toilet and washbasin. Adjacent to this is a handy storage space/cupboard, ideal for storing household items or placing a washing machine.
Details:
• Approx. 41 m² living space (measured according to NEN2580);
• Well-sized bedroom;
• Freehold;
• Wide balcony of over 6 m²;
• Prime location in one of the nicest neighbourhoods in Amsterdam East;
• Healthy and active owners' association. Monthly contribution €75.