Beschrijving

MAAK EENVOUDIG ONLINE EEN AFSPRAAK VIA ONZE WEBSITE. GEBRUIK DE ORANJE BUTTON RECHTSONDER ‘PLAN AFSPRAAK’.

MAKE AN APPOINTMENT ONLINE VIA OUR WEBSITE. USE THE ORANGE BUTTON AT THE BOTTOM RIGHT OF THE PAGE LABELLED ‘PLAN AFSPRAAK’.

Prachtige in 2024 gerenoveerde dubbele bovenwoning met een woonoppervlakte van 95 m2, een riant zonnig dakterras en twee slaapkamers (mogelijkheid voor het creëren van een derde slaapkamer). Eigen grond dus geen erfpacht!

De Crynssenstraat is een brede en rustige straat met veel groen en panden in de Amsterdamse School stijl. De woning ligt midden in de levendige en kindvriendelijke buurt van De Baarsjes. Met het Rembrandtpark en Vondelpark op enkele minuten loopafstand, perfect voor een ontspannen wandeling of frisse ochtendrun. In de buurt vind je ook vele leuke horecagelegenheden, zoals Bar Kosta, Tweede Thuys, Toni’s, Ulmus, Fort Negen en de Hallen. Daarnaast zijn de bruisende Ten Katemarkt, Jan Pieter Heijestraat en Jan Evertsenstraat ook op loopafstand. 

Verder zijn er diverse kinderdagverblijven, scholen en speelgelegenheden in de buurt. De dagelijkse boodschappen doe je om de hoek op de Baarsjesweg of de Postjesweg. Met de fiets ben je binnen tien minuten in de Amsterdamse binnenstad. Kortom, hier woon je in een rustige omgeving, maar met de bruisende stad altijd binnen handbereik. Een perfecte plek om je thuis te voelen in het hart van Amsterdam.

De Ring A10 ligt op twee minuten afstand met de auto. De halte voor tram 1, 7, 17 en 18 en bus 247 en 15 liggen op steenworpafstand van de woning. Dit zorgt ervoor dat de rest van de stad en Schiphol, station Lelylaan en Sloterdijk gemakkelijk te bereiken zijn. 

Indeling:
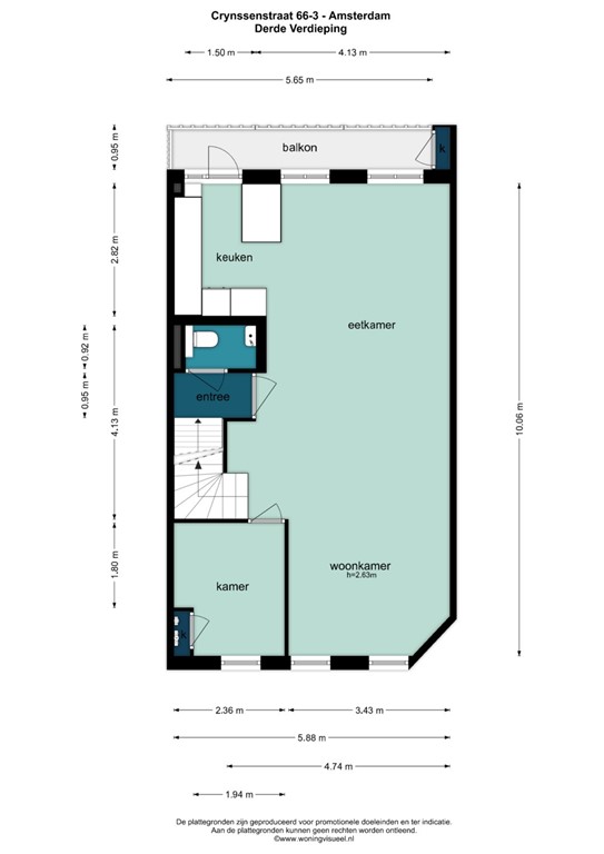
Eigen entree op de tweede verdieping. Hal met een trap naar de derde verdieping. Separaat toilet met fonteintje en toegang tot de lichte en ruime woonkamer met een mooie plafondhoogte. Dankzij de grote raampartijen aan de voor- en achterzijde komt er veel natuurlijk licht naar binnen, wat zorgt voor een prettige en open sfeer. Aan de voorzijde is ruimte voor een comfortabele zithoek, terwijl aan de achterzijde voldoende plaats is voor een royale eethoek.

Aansluitend aan de eetkamer bevindt zich de prachtige moderne eilandkeuken, die van alle gemakken is voorzien zoals een Cooker en NEFF stoombakoven. De keuken biedt toegang tot het balkon aan de achterzijde van de woning.

De eerste slaapkamer/werkkamer ligt aan de voorzijde van de woning en heeft een goed formaat, met voldoende ruimte voor opbergkasten.

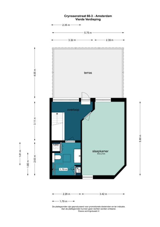
De bovenste verdieping bereik je via een inwendige trap die je naar de overloop met toegang tot de slaapkamer, de badkamer en het grote dakterras brengt. 

De slaapkamer is zeer ruim en een groot tweepersoonsbed en kledingkast zijn makkelijk te plaatsen. Deze ruimte is zo voorbereid dat het mogelijk is, indien gewenst, hier een derde slaapkamer te realiseren. 

De zeer lichte moderne badkamer is uitgerust met een inloop douche, dubbele wastafel en een toilet. Daarnaast is er een aparte kast met aansluitingen voor de wasmachine en droger. 

Het absolute hoogtepunt van deze verdieping is het grote dakterras aan de achterzijde waar je de hele dag kunt ontspannen in de zon. Met een oppervlakte van ruim 23m² biedt dit een heerlijke plek om te bbq’en met vrienden genietende van het uitzicht over de groene omgeving.

Bijzonderheden:
•	Woonoppervlakte van 95m2;
•	Twee goed bemeten slaapkamers. Mogelijkheid tot het creëren van een derde slaapkamer;
•	Zeer recent volledig gerenoveerd (2024); 
•	Energielabel A;
•	Eigen grond;
•	Fijn balkon en een riant dakterras;
•	Toplocatie in de populaire Baarsjes;
•	Actieve VVE met een MJOP. Maandelijkse bijdrage €165,-. 

**********************************

Beautiful double upper floor apartment renovated in 2024 with a living area of 95 m2, a spacious sunny roof terrace and two bedrooms (possibility to create a third bedroom). Freehold, so no ground lease!

Crynssenstraat is a wide and quiet street with lots of greenery and buildings in the Amsterdam School style. The property is located in the lively and child-friendly neighbourhood of De Baarsjes. With Rembrandtpark and Vondelpark just a few minutes' walk away, it is perfect for a relaxing stroll or a refreshing morning run. The neighbourhood also offers many great restaurants and cafés, such as Bar Kosta, Tweede Thuys, Toni's, Ulmus, Fort Negen and De Hallen. In addition, the bustling Ten Katemarkt, Jan Pieter Heijestraat and Jan Evertsenstraat are also within walking distance. 

There are also several nurseries, schools and playgrounds in the neighbourhood. You can do your daily shopping around the corner on Baarsjesweg or Postjesweg. By bicycle, you can reach Amsterdam city centre within ten minutes. In short, you will be living in a quiet neighbourhood, but with the bustling city always within reach. A perfect place to feel at home in the heart of Amsterdam.

The A10 ring road is two minutes away by car. The stops for trams 1, 7, 17 and 18 and buses 247 and 15 are a stone's throw from the property. This makes the rest of the city and Schiphol Airport, Lelylaan station and Sloterdijk easily accessible. 

Layout:
Private entrance on the second floor. Hall with stairs to the third floor. Separate toilet with washbasin and access to the bright and spacious living room with high ceilings. Thanks to the large windows at the front and rear, there is plenty of natural light, creating a pleasant and open atmosphere. At the front, there is space for a comfortable sitting area, while at the rear there is enough space for a spacious dining area.

Adjacent to the dining room is the beautiful modern island kitchen, which is fully equipped with a Cooker and NEFF steam oven. The kitchen provides access to the balcony at the rear of the house.

The first bedroom/study is located at the front of the house and is a good size, with plenty of space for storage cupboards.

The top floor is accessed via an internal staircase that leads to the landing with access to the bedroom, bathroom and large roof terrace. 

The bedroom is very spacious and easily accommodates a large double bed and wardrobe. This space has been prepared in such a way that it is possible to create a third bedroom here if desired. 

The very bright, modern bathroom is equipped with a walk-in shower, double sink and toilet. There is also a separate cupboard with connections for the washing machine and dryer. 

The absolute highlight of this floor is the large roof terrace at the rear, where you can relax in the sun all day long. With an area of over 23m², this is a wonderful place to barbecue with friends while enjoying the view of the green surroundings.

Details:
•	Living area of 95m²;
•	Two good-sized bedrooms. Possibility to create a third bedroom;
•	Very recently completely renovated (2024); 
•	Energy label A;
•	Freehold (no ground lease);
•	Lovely balcony and spacious roof terrace;
•	Prime location in the popular Baarsjes neighbourhood;
•	Active owners' association with a long-term maintenance plan. Monthly contribution €165.

Kenmerken