Description

MAAK EENVOUDIG ONLINE EEN AFSPRAAK VIA ONZE WEBSITE. GEBRUIK DE ORANJE BUTTON RECHTSONDER ‘BEZICHTIGING PLANNEN’.

MAKE AN APPOINTMENT ONLINE VIA OUR WEBSITE. USE THE ORANGE BUTTON AT THE BOTTOM RIGHT OF THE PAGE LABELLED ‘BEZICHTIGING PLANNEN’.

Zeer goed ingedeeld en licht appartement van 91 m² met drie slaapkamers, een ruim terras, een aparte berging en een privé gemeenschappelijke tuin.

De Leuvenstraat ligt in een levendige woonwijk van Amsterdam waar rust, groen en stedelijke voorzieningen mooi samenkomen. Je woont hier in een prettige buurt met een goede balans tussen wonen, winkelen en ontspanning, terwijl je toch op slechts 15 minuten van het stadscentrum en de luchthaven bent.

Voor je dagelijkse boodschappen en een gevarieerd aanbod aan winkels kun je terecht in de nabijgelegen winkelstraten en buurtwinkelcentra. Hier vind je supermarkten, speciaalzaken, bakkers en diverse lokale winkels. Daarnaast zijn er verschillende charmante boetieks en praktische voorzieningen zoals drogisterijen en verswinkels. Vrijwel alles wat je nodig hebt ligt dus binnen handbereik. Ook zijn er in de omgeving meerdere scholen en kinderdagverblijven.
De omgeving biedt daarnaast volop mogelijkheden om van het groen te genieten. In de buurt liggen verschillende parken waar je kunt wandelen, sporten of gewoon ontspannen.

Het centrum van Amsterdam bereik je snel en gemakkelijk met de fiets of tram. Ook de luchthaven is via een directe busverbinding binnen 15 minuten bereikbaar. Daarnaast zijn de A4, A9 en A10 snel en eenvoudig te bereiken.

Indeling
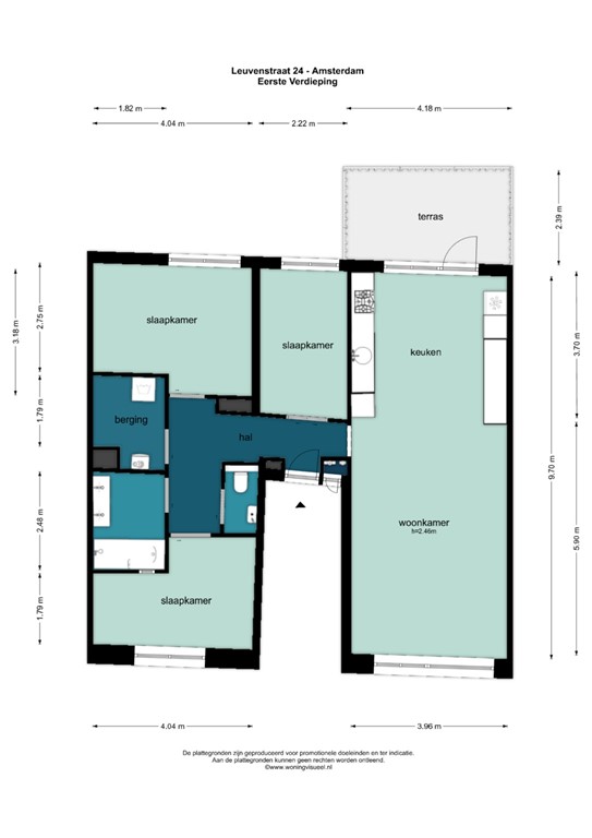
Bij binnenkomst stap je de hal binnen, die toegang biedt tot vrijwel alle vertrekken. Vanuit hier bereik je de woonkamer, de drie slaapkamers, de badkamer, het aparte toilet en de aanwezige bergruimtes.
Dankzij de grote ramen en de oost-westligging komt er veel natuurlijk daglicht in de woonkamer, wat zorgt voor een prettige en open sfeer. De ruime woonkamer biedt voldoende plek voor zowel een comfortabele zithoek als een eethoek. De woonkamer staat in directe verbinding met de open keuken, die is voorzien van diverse inbouwapparatuur. Alle deuren in het appartement zijn praktische en ruimtebesparende schuifdeuren.

Vanuit de keuken heb je toegang tot het terras. Het terras is circa 11 m² en is een heerlijke plek om buiten te zitten en te genieten van de ochtendzon. Vanaf het terras kijk je uit over de groene gemeenschappelijke binnentuin.

Het appartement beschikt over drie goed bemeten slaapkamers, die je flexibel kunt inrichten als slaapkamer, thuiswerkplek of logeerkamer. De grootste slaapkamer is voorzien van airconditioning. De andere twee slaapkamers bieden voldoende ruimte voor een bed en kledingkast.
De badkamer is uitgerust met een ligbad en een wastafel. Daarnaast is er een apart toilet met een fonteintje. Ook is er een praktische interne bergruimte aanwezig.

Berging
Je beschikt over een aparte berging van circa 4 m², ideaal voor extra opslag.

Kenmerken
•	Woonoppervlakte van 91 m²;
•	Drie ruime slaapkamers;
•	Licht en royaal appartement;
•	Groot balkon/terras;
•	Aparte berging van circa 4 m²;
•	Energielabel A;
•	Volledig voorzien van zonwering (woonkamer en één slaapkamer) en verduisterende gordijnen (twee slaapkamers);
•	Prettige gemeenschappelijke binnentuin, uitsluitend voor bewoners;
•	Erfpacht afgekocht tot 2042. Daarna jaarlijkse canon van €178 (eeuwigdurende erfpacht);
•	Professioneel beheerde VvE met een meerjarenonderhoudsplan (MJOP). Maandelijkse bijdrage: €168,81;
•	Vaste notaris: Dudok van Heel Amsterdam.

*********************

Very well laid-out and bright apartment of 91 m² with three bedrooms, a spacious terrace, a separate storage unit, and a private communal garden.

Leuvenstraat is located in a lively residential area of Amsterdam where tranquillity, greenery, and urban amenities come together beautifully. Here you live in a pleasant neighbourhood with a great balance between living, shopping, and relaxation, but just 15 minutes away from the city centre and the airport

For your daily groceries and a varied selection of shops, you can visit the nearby shopping streets and neighbourhood shopping centres. Here you will find supermarkets, specialty stores, bakeries, and various local shops. There are also several charming boutiques and practical amenities such as drugstores and fresh food shops, meaning almost everything you need is within easy reach. There are also plenty of schools and kindergartens.
The surrounding area also offers plenty of opportunities to enjoy green spaces. Several parks are located nearby where you can go for a walk, exercise, or simply relax.

The centre of Amsterdam can be reached quickly and easily by bicycle or tram. The airport can also be reached within 15 minutes via a direct bus. In addition, the A4, A9, and A10 highways are easily accessible.

Layout:
Upon entering the apartment, you step into the hallway, which provides access to almost all rooms. From here you can reach the living room, the three bedrooms, the bathroom, the separate toilet, and the available storage spaces.

Thanks to the large windows and to the east-west orientation, plenty of natural daylight enters the living room, creating a pleasant and open atmosphere. The spacious living room offers ample space for both a comfortable seating area and a dining area. The living room is directly connected to the open kitchen, which is equipped with various built-in appliances. All doors in the apartment are practical and space-saving sliding doors. 

From the kitchen you have access to the terrace. The terrace is approximately 11 m² and is a wonderful place to sit outside and enjoy the morning sun. From the terrace you have a beautiful green view over the communal courtyard garden.

The apartment features three well-sized bedrooms, which can be flexibly arranged as bedrooms,  home offices, or guest rooms. The largest bedroom is equipped with air conditioning. The other two bedrooms offer sufficient space for a bed and wardrobe. 

The bathroom is fitted with a bathtub and a sink. In addition, there is a separate toilet with a small washbasin. The apartment also includes a practical storage space.

Storage:
There is a practical separate storage unit of approximately 4 m².

Key features:
•	Living area of over 91 m²;
•	Three spacious bedrooms;
•	Bright and generously sized apartment;
•	Large balcony;
•	Separate storage unit of approximately 4 m²;
•	Energy label A;
•	The apartment is fully equipped with sun blinds (living room and one bedroom) and black-out blinds (two bedrooms);
•	Pleasant communal courtyard garden for residents only;
•	Ground lease paid off until 2042. The owners have switched to perpetual ground lease with an annual ground rent after 2042 of €178;
•	Professionally managed homeowners’ association (VvE) with a long-term maintenance plan (MJOP). Monthly contribution: €168.81;
•	Fixed notary: Dudok van Heel Amsterdam.

Features